El para la UniCABA, ubicado dentro del Parque de Innovación de la Ciudad de Buenos Aires, se concibe a partir de un programa que exige espacios abiertos, flexibles y capaces de alojar múltiples situaciones y actividades. Con estas premisas y considerando su implantación en el predio, el proyecto organiza el conjunto poniendo especial énfasis en los espacios áulicos.
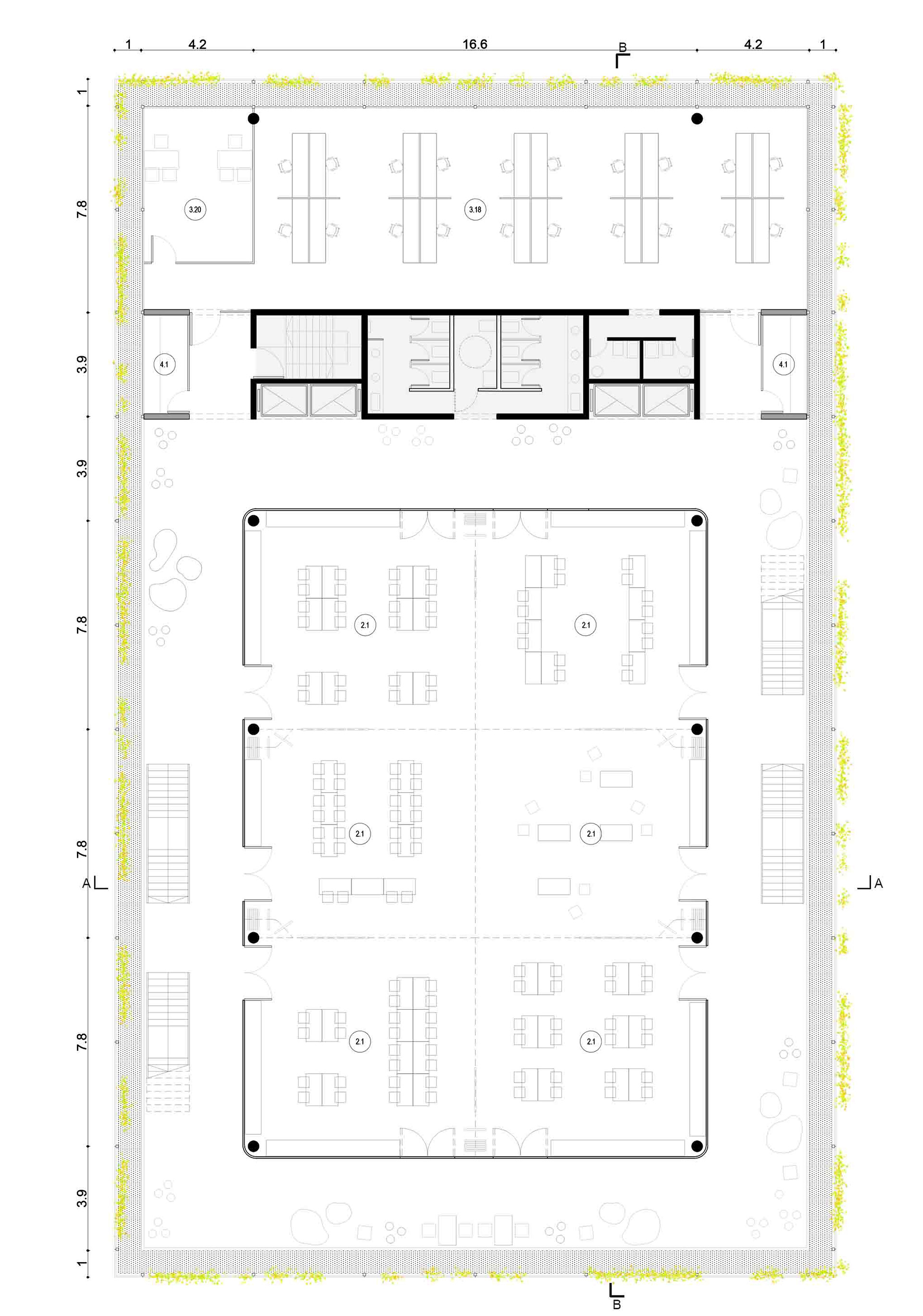
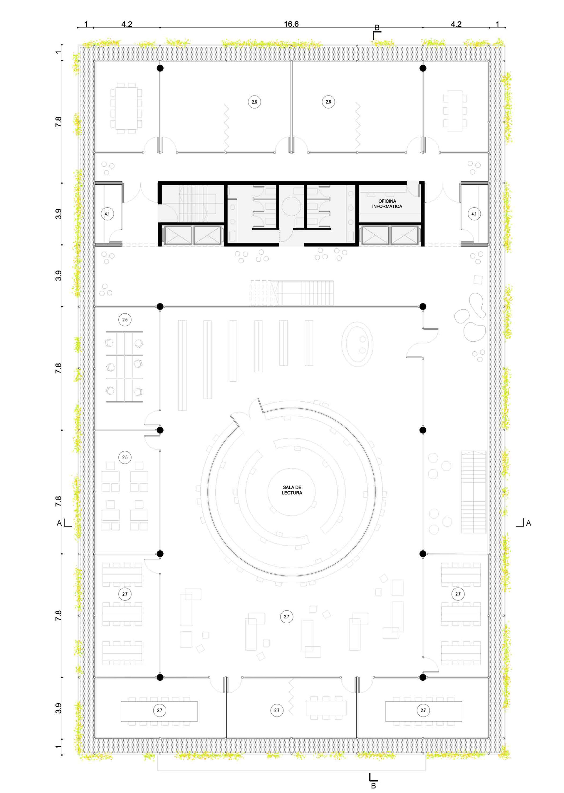
Hacia el Boulevard Campos Salles se dispone un bloque administrativo que se articula, nivel por nivel, con la biblioteca, los laboratorios y el S.U.M. En dirección al eje peatonal verde se ubica el sector de aulas, donde el proyecto despliega su mayor potencial. Estas aulas cuentan con un sistema de paneles móviles que permite subdividirlas según las necesidades pedagógicas. Están rodeadas por un espacio semicubierto vinculado mediante un cerramiento transparente, lo que posibilita integrar ambos ámbitos y desarrollar actividades educativas, recreativas, de descanso y circulación. Este espacio se caracteriza, además, por su relación con el exterior: la malla que envuelve el edificio, junto con las enredaderas de jazmín, aporta privacidad, control visual desde el exterior y una notable mejora térmica.
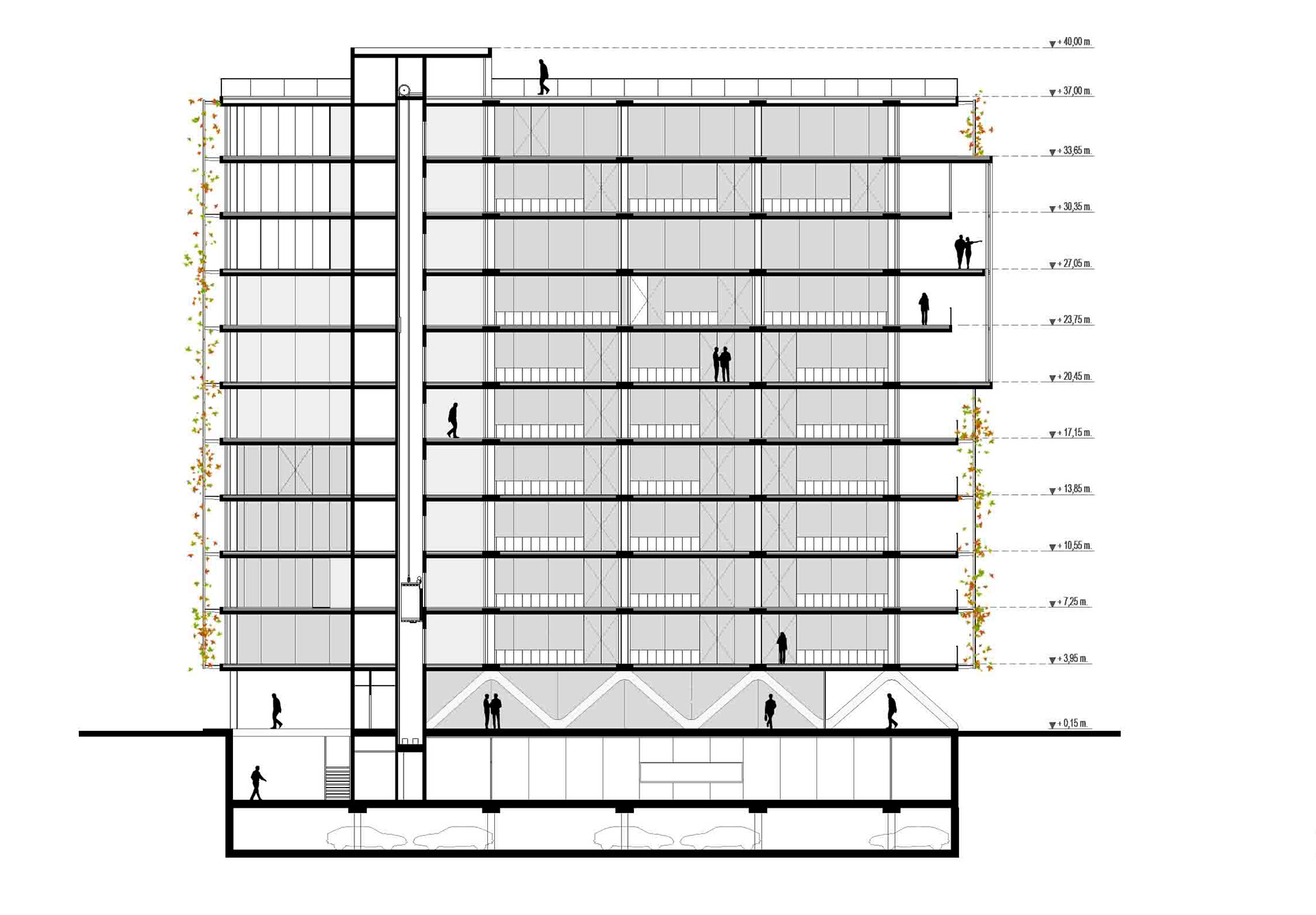
La estructura del edificio se diseña para garantizar grandes superficies libres en cada nivel. Por ello se utilizan losas de hormigón armado apoyadas sobre vigas chatas e invertidas que favorecen la continuidad espacial requerida por el programa. En planta baja el sistema se vuelve mixto, incorporando dos vigas reticuladas que, además de definir espacialmente el lugar y sus usos, permiten reducir la cantidad de apoyos en el nivel del auditorio.
En la azotea, el edificio incorpora un gran plano verde que no solo permite la recolección de agua de lluvia, sino que también habilita actividades recreativas y educativas al aire libre, superando la idea de una simple expansión. Allí se suma una batería de paneles solares que genera energía eléctrica a partir de una fuente alternativa. Este sistema se complementa con recolectores de agua de lluvia ubicados en los perímetros de las aulas, que abastecen directamente a los núcleos sanitarios de cada piso.
Todos estos aspectos consolidan al primer edificio de la UNICABA como un referente arquitectónico para la ciudad y para la educación del siglo XXI, no solo por su imagen sino por las soluciones que propone. El edificio se convierte así en una herramienta para reformular la educación en la Argentina, desde su concepción espacial, tecnológica y ambiental.
Equipo de proyecto: Cintia Colazzo, Damián Villar, Iván Cheuschuska, Adolfo Schlieper
Colaboradores: Fernanda Galantini
Año: 2019
Tipología: Edificio universitario. 
Back to Top