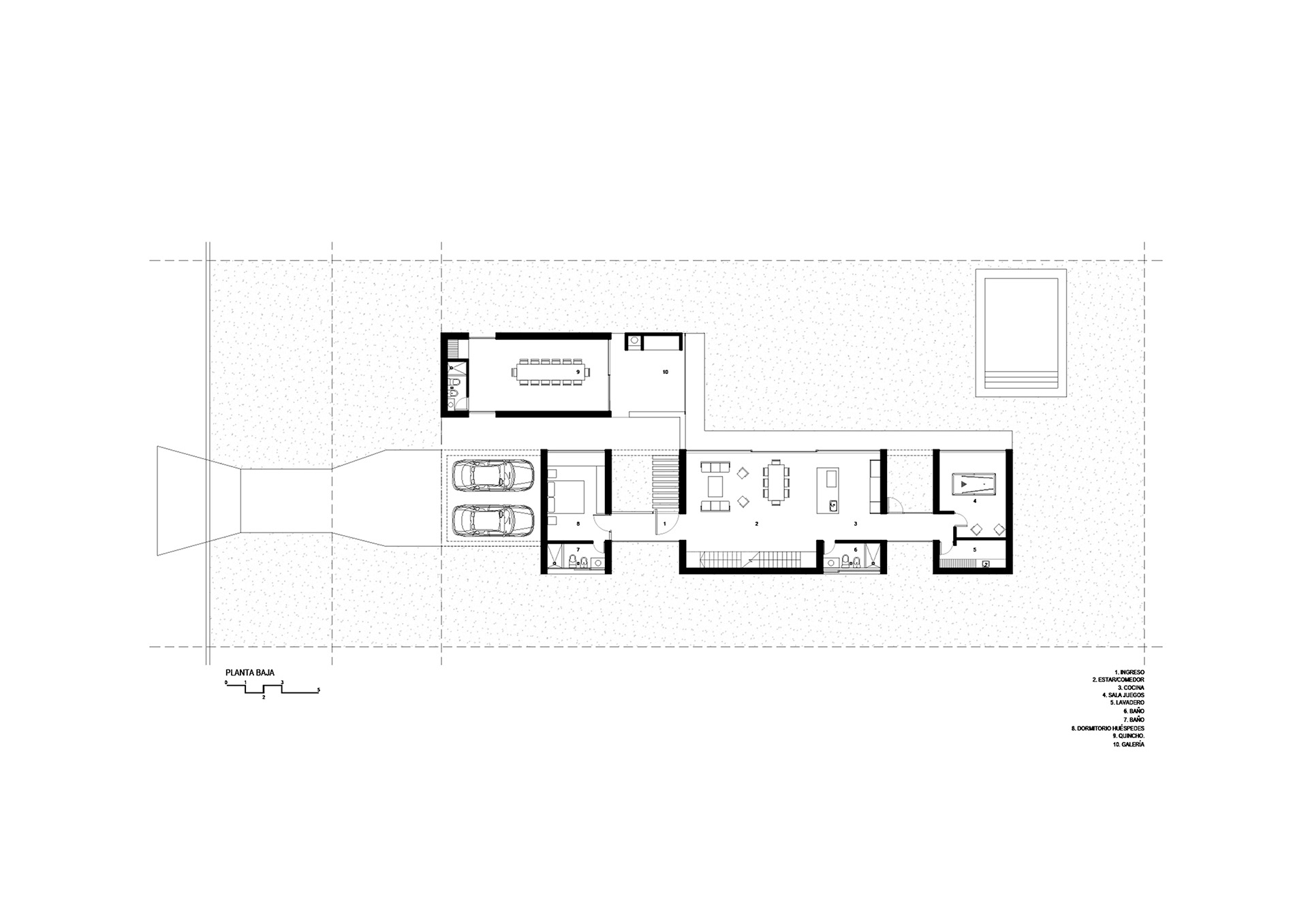
La vivienda se emplaza en un barrio cerrado de la localidad de Roldán, cercana a la ciudad de Rosario, allí donde la masa edilicia se va disolviendo transformándose en construcciones bajas rodeadas de espacio verde y naturaleza. Dentro del terreno, la vivienda en toda su longitud se ubica hacia el sur, dejando el espacio libre hacia el norte, para obtener los soles del invierno y aprovechar el espacio de la piscina en el verano. 
En planta baja, simples planos portantes de mampostería de ladrillos con junta rasada soportan todo el peso de la privacidad, de los espacios íntimos. Estos planos se transforman en los principales elementos separadores de planta baja. Los mismos buscan el exterior en su parte más alta, ahí donde el plano que soporta la vida íntima de los habitantes no quiere interrumpir esta constante búsqueda de los espacios exteriores.
En cuanto al interior, los espacios de circulaciones ya no son lugares oscuros e infinitos, sino espacios donde uno encuentra la posibilidad de seguir sintiéndose en el exterior. Ciertos espacios se separan mediante el verde que intenta ingresar a la vivienda en forma de pequeños patios interiores. Es el caso del ingreso, ya que desde el frente hay que “buscarlo”, debido a que es una sustracción más que se produce para generar un patio que también contiene la gran abertura de entrada a la casa. Es este espacio el que permite generar privacidad del dormitorio principal en la planta alta, separándolo del resto de los dormitorios y estudio.  Ese dormitorio se encuentra flotando hacia el frente generando un gran voladizo que, a su vez, contiene la cochera en planta baja.
Por otro lado, el quincho separado, esa posibilidad de tener ese espacio de distracción y ocio fuera de la vivienda, donde acoger las visitas es posible con visuales enmarcando siempre los límites exteriores.
Equipo de proyecto: Adolfo Schlieper
Ejecución y dirección técnica: Adolfo Schlieper
Cálculo estructural: Ing. Roberto Paloma
Año: 2020/2021​​​​​​​
Fotografías: Arq. Walter Gustavo Salcedo

Back to Top